Tải bản vẽ nhà phố 2 tầng rộng 8m x 9m 3 ngủ cad full

Tải bản vẽ nhà phố 2 tầng rộng 8m x 9m 3 ngủ cad đẹp

MUA NGAY MẪU NHÀ NÀY
Tải bản vẽ nhà phố 2 tầng rộng 8m x 9m 3 ngủ cad.
Tải bản vẽ nhà phố 2 tầng rộng 8m x 9m 3 ngủ cad.
Hstk nhà phố 2 tầng ngang 8m x 9m 3 ngủ cad.
Hstk nhà phố 2 tầng ngang 8m x 9m 3 ngủ cad.
Hồ sơ bản vẽ nhà phố 2 tầng mặt tiền 8m x 9m 3 ngủ.
Hồ sơ bản vẽ nhà phố 2 tầng mặt tiền 8m x 9m 3 ngủ.
Hồ sơ thi công nhà phố 2 tầng ngang 8m x 9m đẹp.
Hồ sơ thi công nhà phố 2 tầng ngang 8m x 9m đẹp.
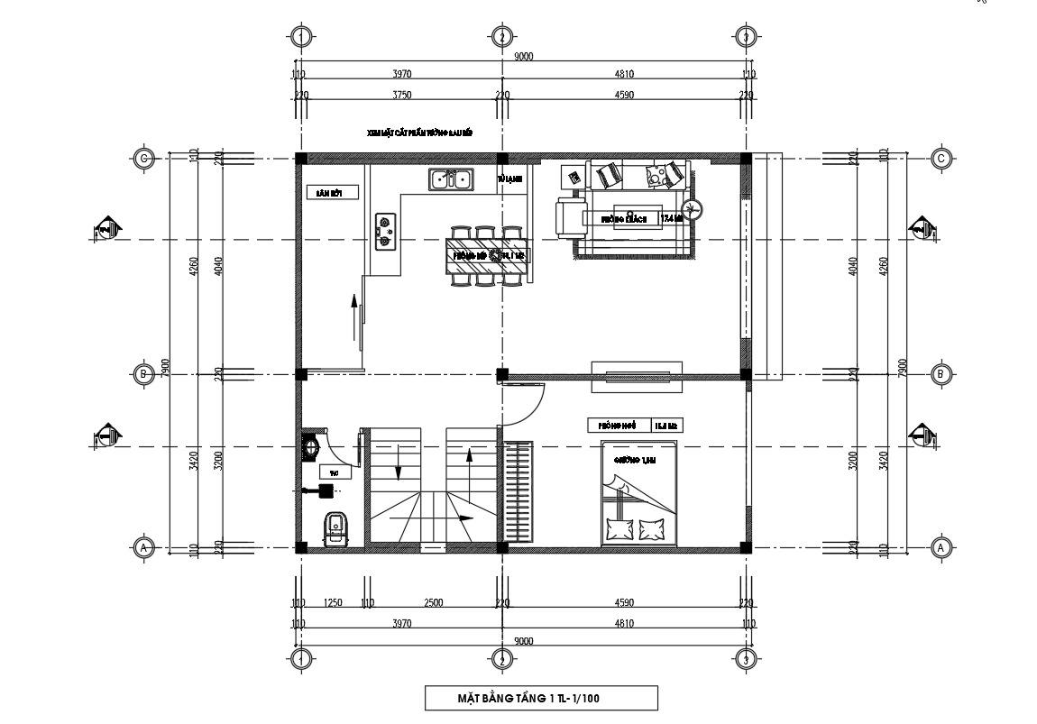
Mặt bằng tầng 1 nhà 2 tầng ngang 8m.
Mặt bằng tầng 1 nhà 2 tầng ngang 8m.
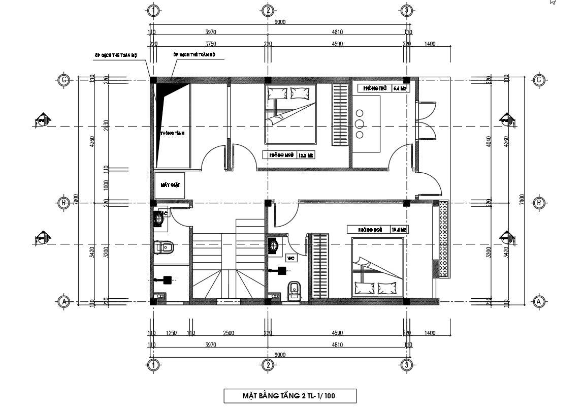
Mặt bằng tầng 2 nhà phố 2 tầng rộng 8m.
Mặt bằng tầng 2 nhà phố 2 tầng rộng 8m.
Mặt đứng công trình nhà phố 2 tầng 8m x 9m.
Mặt đứng công trình nhà phố 2 tầng 8m x 9m.
Bản vẽ xây dựng nhà phố 2 tầng 8m x 9m cad.
Bản vẽ xây dựng nhà phố 2 tầng 8m x 9m cad.
Phần kết cấu nhà ống 2 tầng mặt tiền 8m x 9m cad đẹp.
Phần kết cấu nhà ống 2 tầng mặt tiền 8m x 9m cad đẹp.
Phần điện nước nhà phố 2 tầng rộng 8m x 9m đẹp.
Phần điện nước nhà phố 2 tầng rộng 8m x 9m đẹp.
3D sketchup nhà phố 2 tầng hiện đại đẹp.
3D sketchup nhà phố 2 tầng hiện đại đẹp.
Bản vẽ nhà phố 2 tầng sketchup full.
Bản vẽ nhà phố 2 tầng sketchup full.
Bản vẽ thiết kế nhà phố 2 tầng full cad.
Bản vẽ thiết kế nhà phố 2 tầng full cad.
Bản vẽ mặt bằng tầng 2 nhà ống 2 tầng rộng 8m x 9m.
Bản vẽ mặt bằng tầng 2 nhà ống 2 tầng rộng 8m x 9m.
Bản vẽ mặt bằng mái nhà phố 2 tầng rộng 8m x 9m.
Bản vẽ mặt bằng mái nhà phố 2 tầng rộng 8m x 9m.
Bản vẽ mặt đứng nhà phố 2 tầng đẹp.
Bản vẽ mặt đứng nhà phố 2 tầng đẹp.
File cad mặt cắt nhà phố 2 tầng 8m x 9m đẹp.
File cad mặt cắt nhà phố 2 tầng 8m x 9m đẹp.
File autocad nhà phố 2 tầng 8m x 9m full cad.
File autocad nhà phố 2 tầng 8m x 9m full cad.
Bản vẽ cad chi tiết nhà vệ sinh đầy đủ.
Bản vẽ cad chi tiết nhà vệ sinh đầy đủ.
Bản vẽ thiết kế chi tiết nhà phố làm cấp phép xây dựng.
Bản vẽ thiết kế chi tiết nhà phố làm cấp phép xây dựng.
Bản vẽ cửa nhà phố 2 tầng cad đẹp.
Bản vẽ cửa nhà phố 2 tầng cad đẹp.
Bản vẽ thiết kế móng dùng cọc tre cad đẹp.
Bản vẽ thiết kế móng dùng cọc tre cad đẹp.
Bản vẽ mặt bằng móng nhà phố 2 tầng 8m x 9m.
Bản vẽ mặt bằng móng nhà phố 2 tầng 8m x 9m.
Thiết kế chi tiết móng nhà phố 2 tầng 8m x 9m 3 ngủ.
Thiết kế chi tiết móng nhà phố 2 tầng 8m x 9m 3 ngủ.
Bản vẽ thiết kế kết cấu nhà phố 2 tầng cad đẹp.
Bản vẽ thiết kế kết cấu nhà phố 2 tầng cad đẹp.
File thiết kế kết cấu nhà phố 2 tầng 8m x 9m.
File thiết kế kết cấu nhà phố 2 tầng 8m x 9m.
Bản vẽ cad kết cấu nhà phố 2 tầng cad đẹp.
Bản vẽ cad kết cấu nhà phố 2 tầng cad đẹp.
File dwg bản vẽ cad kết cấu nhà phố 2 tầng 8m x 9m.
File dwg bản vẽ cad kết cấu nhà phố 2 tầng 8m x 9m.
Thiết kế kết cấu dầm sàn nhà phố 2 tầng đẹp.
Thiết kế kết cấu dầm sàn nhà phố 2 tầng đẹp.
Bản vẽ thống kê thép nhà phố 2 tầng.
Bản vẽ thống kê thép nhà phố 2 tầng.
Bản vẽ điện nước nhà phố 2 tầng cad đẹp.
Bản vẽ điện nước nhà phố 2 tầng cad đẹp.
Bản vẽ thiết kế điện nước chiếu sáng nhà phố 2 tầng.
Bản vẽ thiết kế điện nước chiếu sáng nhà phố 2 tầng.
Full bản vẽ cad nhà phố 2 tầng cad đẹp.
Full bản vẽ cad nhà phố 2 tầng cad đẹp.
Bản vẽ cấp thoát nước nhà phố 2 tầng cad đẹp.
Bản vẽ cấp thoát nước nhà phố 2 tầng cad đẹp.
Cấp thoát nước full nhà 2 tầng.
Cấp thoát nước full nhà 2 tầng.
Mẫu bản vẽ cad nhà phố 2 tầng 8m x 9m.
Mẫu bản vẽ cad nhà phố 2 tầng 8m x 9m.
Mẫu bản vẽ nhà phố 2 tầng cad đẹp.
Mẫu bản vẽ nhà phố 2 tầng cad đẹp.
MUA NGAY MẪU NHÀ NÀY

MỘT SỐ MẪU NHÀ 2 TẦNG KHÁC.