Bản vẽ cad biệt thự 2 tầng địa trung hải 15m x 12m 5 ngủ

Bản vẽ cad biệt thự 2 tầng địa trung hải 15m x 12m

MUA NGAY MẪU NHÀ NÀY
Bản vẽ cad biệt thự 2 tầng địa trung hải 15m x 12m 5 ngủ.
Bản vẽ cad biệt thự 2 tầng địa trung hải 15m x 12m 5 ngủ.
Hstk biệt thự 2 tầng 15m x 12m 5 ngủ 130m2.
Hstk biệt thự 2 tầng 15m x 12m 5 ngủ 130m2.
Hồ sơ bản vẽ cad biệt thự 2 tầng 15m x 12m 5 ngủ.
Hồ sơ bản vẽ cad biệt thự 2 tầng 15m x 12m 5 ngủ.
Mặt bằng tầng 1 địa trung hải 15m x 12m.
Mặt bằng tầng 1 địa trung hải 15m x 12m.
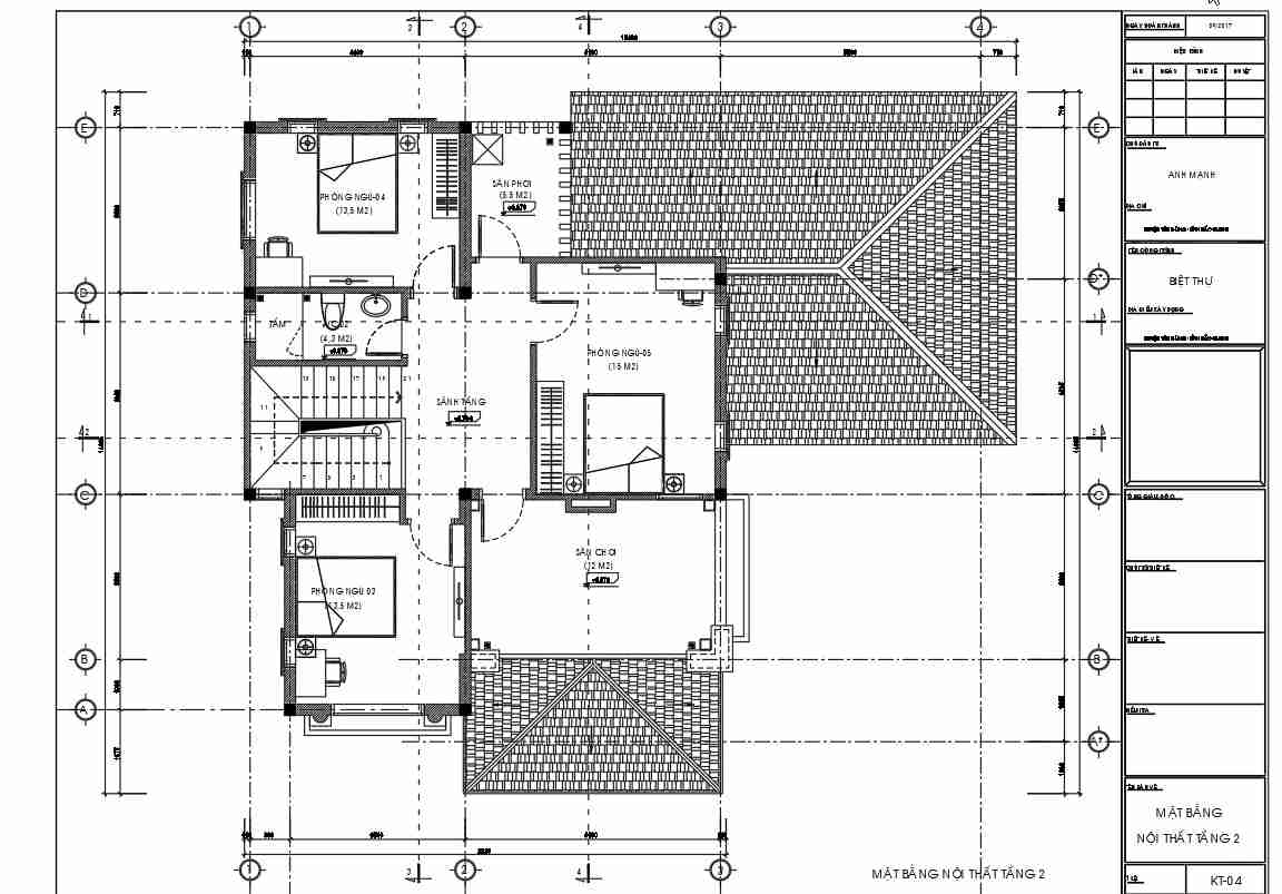
Mặt bằng tầng 2 mẫu nhà 2 tầng địa trung hải cad.
Mặt bằng tầng 2 mẫu nhà 2 tầng địa trung hải cad.
Mặt đứng nhà địa trung hải 2 tầng 15m x 12m 5 ngủ.
Mặt đứng nhà địa trung hải 2 tầng 15m x 12m 5 ngủ.
Hồ sơ thi công mặt đứng nhà địa trung hải.
Hồ sơ thi công mặt đứng nhà địa trung hải.
Bản vẽ xây dựng biệt thự 2 tầng địa trung hải đẹp.
Bản vẽ xây dựng biệt thự 2 tầng địa trung hải đẹp.
File cad phần điện nước nhà 2 tầng địa trung hải.
File cad phần điện nước nhà 2 tầng địa trung hải.
File autocad mẫu biệt thự 2 tầng địa trung hải mặt tiền 15m.
File autocad mẫu biệt thự 2 tầng địa trung hải mặt tiền 15m.
File cad thiết kế biệt thự 2 tầng địa trung hải cad đẹp.
File cad thiết kế biệt thự 2 tầng địa trung hải cad đẹp.
Bản vẽ cad mẫu nhà 2 tầng địa trung hải đẹp.
Bản vẽ cad mẫu nhà 2 tầng địa trung hải đẹp.
Bản vẽ thiết kế mặt bằng mái nhà 2 tầng địa trung hải.
Bản vẽ thiết kế mặt bằng mái nhà 2 tầng địa trung hải.
File thiết kế biệt thự 2 tầng địa trung hải đẹp.
File thiết kế biệt thự 2 tầng địa trung hải đẹp.
File dwg xà gồ lanh tô mái biệt thự 2 tầng đẹp.
File dwg xà gồ lanh tô mái biệt thự 2 tầng đẹp.
Bản vẽ xà gồ li tô nhà 2 tầng địa trung hải cad.
Bản vẽ xà gồ li tô nhà 2 tầng địa trung hải cad.
Mẫu biệt thự 2 tầng địa trung hải mặt tiền 15m.
Mẫu biệt thự 2 tầng địa trung hải mặt tiền 15m.
Bản vẽ mặt cắt biệt thự 2 tầng địa trung hải 15m.
Bản vẽ mặt cắt biệt thự 2 tầng địa trung hải 15m.
Bản vẽ kiến trúc biệt thự 2 tầng địa trung hải đẹp.
Bản vẽ kiến trúc biệt thự 2 tầng địa trung hải đẹp.
Download bản vẽ biệt thự 2 tầng 15m x 12m 5 ngủ.
Download bản vẽ biệt thự 2 tầng 15m x 12m 5 ngủ.
Tải bản vẽ biệt thự 2 tầng địa trung hải cad đẹp.
Tải bản vẽ biệt thự 2 tầng địa trung hải cad đẹp.
Bản vẽ chi tiết phào chỉ biệt thự 2 tầng địa trung hải.
Bản vẽ chi tiết phào chỉ biệt thự 2 tầng địa trung hải.
Bản vẽ thiết kế chi tiết biệt thự 2 tầng địa trung hải đẹp.
Bản vẽ thiết kế chi tiết biệt thự 2 tầng địa trung hải đẹp.
Bản vẽ biệt thự địa trung hải cad đẹp.
Bản vẽ biệt thự địa trung hải cad đẹp.
Thiết kế chi tiết biệt thự 2 tầng địa trung hải đẹp.
Thiết kế chi tiết biệt thự 2 tầng địa trung hải đẹp.
Thiết kế chi tiết biệt thự địa trung hải rộng 15m x 12m.
Thiết kế chi tiết biệt thự địa trung hải rộng 15m x 12m.
Mẫu bản vẽ chi tiết cột trang trí.
Mẫu bản vẽ chi tiết cột trang trí.
Thiết kế chi tiết nhà vệ sinh cad đẹp.
Thiết kế chi tiết nhà vệ sinh cad đẹp.
Mặt bằng định vị cửa biệt thự.
Mặt bằng định vị cửa biệt thự.
Bản vẽ thiết kế chi tiết cửa biệt thự đẹp.
Bản vẽ thiết kế chi tiết cửa biệt thự đẹp.
Mẫu bản vẽ cad cửa đẹp.
Mẫu bản vẽ cad cửa đẹp.
Thiết kế chi tiết điện chiếu sáng cad đẹp.
Thiết kế chi tiết điện chiếu sáng cad đẹp.
Bản vẽ điện nước biệt thự 2 tầng địa trung hải.
Bản vẽ điện nước biệt thự 2 tầng địa trung hải.
Bản vẽ đầu nối điện nước 2 tầng địa trung hải.
Bản vẽ đầu nối điện nước 2 tầng địa trung hải.
Bản vẽ nhà 2 tầng cấp thoát nước đẹp.
Bản vẽ nhà 2 tầng cấp thoát nước đẹp.
Bản vẽ cad biệt thự 2 tầng địa trung hải.
Bản vẽ cad biệt thự 2 tầng địa trung hải.
MUA NGAY MẪU NHÀ NÀY

MỘT SỐ MẪU NHÀ BIỆT THỰ 2 TẦNG KHÁC.