Thiết kế nhà đẹp tại Quảng Ninh, nhà anh Hùng rộng 6x12m
Chủ đầu tư: Anh Hùng
Mã số dự án: PT61.
Địa chỉ nhà: tại phường Hà Khánh, thành phố Hạ Long, tỉnh Quảng Ninh.
Thời điểm thiết kế nhà: tháng 10 năm 2018.
Open this in UX Builder to add and edit content
THIẾT KẾ NHÀ ỐNG 3 TẦNG TẠI QUẢNG NINH:
Nhà phố hay nhà chia lô theo theo quy hoạch là dạng nhà phổ biến và thường hay gặp tại Việt Nam. Diện tích phân lô theo quy hoạch có chiều rộng mặt tiền 4,5m, 5m, 5,5m và 6m.
CÔNG NĂNG THIẾT KẾ NHÀ ANH HÙNG TẠI P.HÀ KHÁNH, T.QUẢNG NINH:
Công năng thiết kế nhà tại tầng 1:

Mặt bằng thiết kế nhà tại Quảng Ninh, mặt bằng tầng 1, SĐT: 0965882388.
Tại tầng 1, do chiều dài sân là 3m nên một phần diện tích phòng khách được làm garaxe, căn nhà có chiều rộng mặt tiền là 6m phần chiều rộng cửa chính vẫn còn là 3,2m. Tiếp theo đến khu vực phòng khách có diện tích tương đối rộng, tại phòng khách có khu vực phía sau có thể làm khu vui chơi cho trẻ. Mặt tiền căn nhà được thiết kế toàn bộ bằng vách kính nên từ phòng khách có thể ngắm được khu vườn và garaxe phía ngoài. Phía dưới gầm cầu thang là kho để đồ. Chiều cao tầng 1 là 4,0m chia làm 23 bậc, chiều cao trung bình 1 bậc là 173cm. Căn nhà có 02 khu vực giếng trời, 01 tại khu cầu thang, 01 tại sát tường trục 4. Phòng bếp được thiết kế phía sau nhà, phía sau bệ rửa là nhà vệ sinh nhỏ.
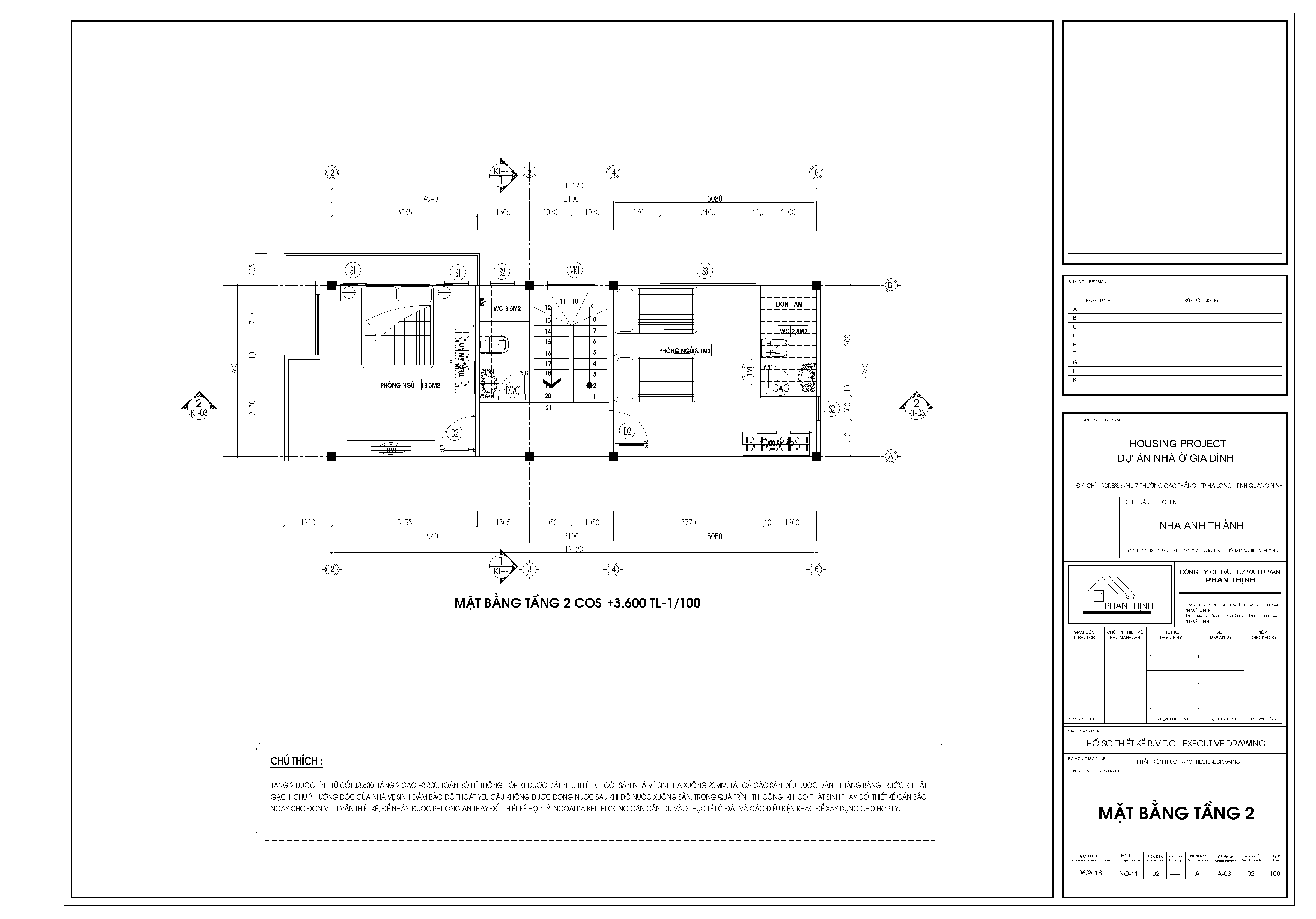
Công năng thiết kế nhà tại tầng 2:

Mặt bằng thiết kế nhà tại Quảng Ninh, mặt bằng tầng 2, SĐT: 0965882388.
Tầng 2 gồm 02 phòng ngủ, cả 2 phòng đều có nhà vệ sinh riêng. Phòng ngủ master, có hành lang ra phía ngoài mặt tiền, có khu vực thay đồ riêng. Cả 2 phòng vệ sinh đều có cửa sổ 600×600 tại khu vực giếng trời số 2.
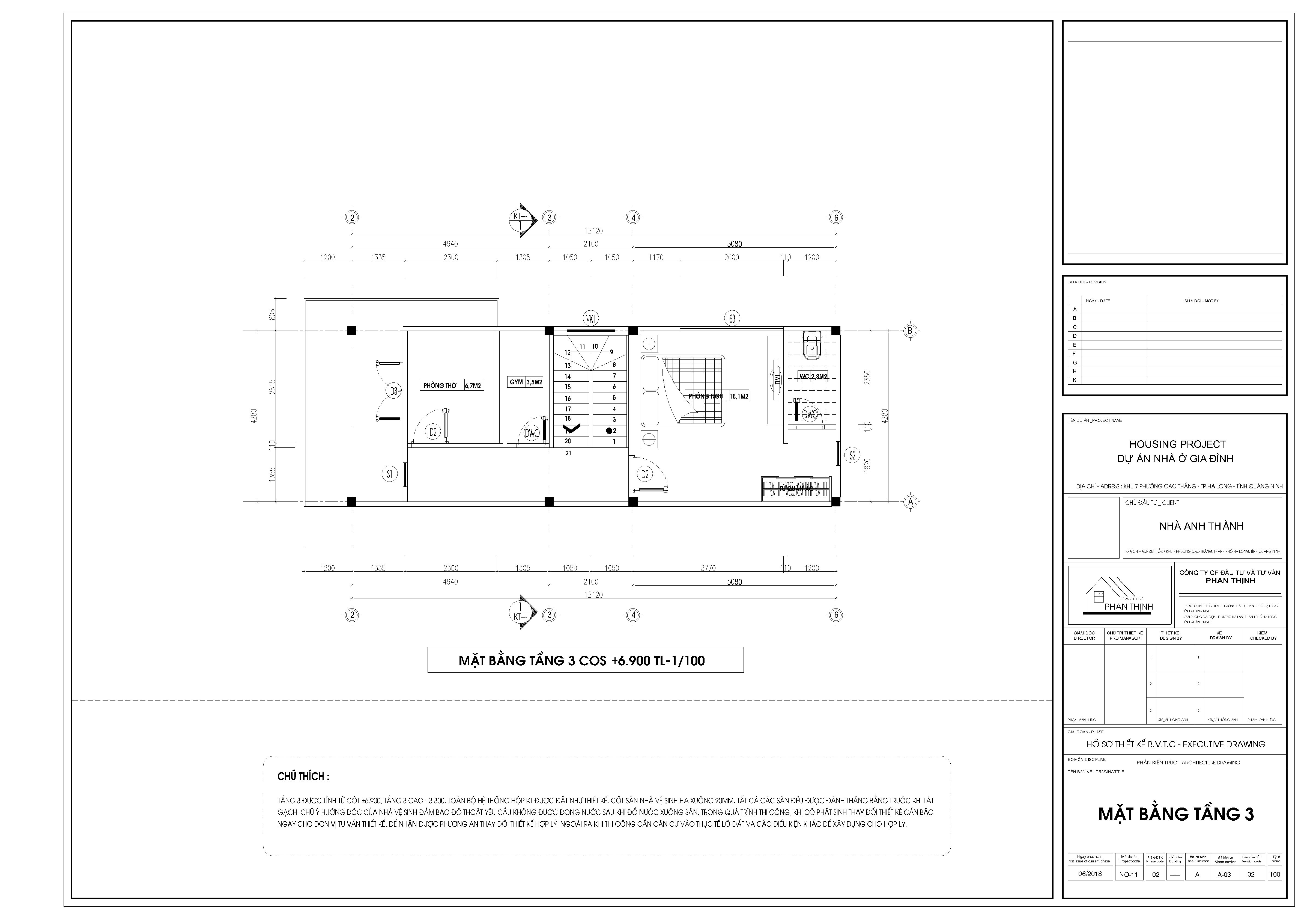
Công năng thiết kế nhà tại tầng 3:

Mặt bằng thiết kế nhà tại Quảng Ninh, mặt bằng tầng 3, SĐT: 0965882388.
Mặt bằng tầng 3 gồm 01 phòng thời, 01 phòng ngủ con có thiết kế giống như phòng ngủ tại tầng 2. Tại sân thượng có thiết kế khá rộng, có thể kê bàn ngồi uống nước tại đây.
THIẾT KẾ PHỐI CẢNH CỦA CĂN NHÀ:

Phối cảnh thiết kế nhà tại Quảng Ninh, nhà phố 3 tầng hiện đại, phương án 1, SĐT: 0965882388.
Căn nhà để dành khá nhiều diện tích để trồng hoa, tạo cảm giác gần gũi thiên nhiên hơn cho chủ nhà. Thiết kế cổng bao gồm 01 cửa chính (04 cánh) và cửa phụ (02 cánh). Mặt tiền căn nhà có thiết kế khá đơn giản nhưng tạo cảm giác thân thiện, ưa nhìn.

Phối cảnh thiết kế nhà tại Quảng Ninh, nhà phố 3 tầng hiện đại, phương án 1, góc nhìn 2, SĐT: 0965882388.

Phối cảnh thiết kế nhà tại Quảng Ninh, nhà phố 3 tầng hiện đại, phương án 2, SĐT: 0965882388.
Phương án này được thiết kế với tông màu tối, theo yêu cầu của gia chủ, và phương án 2 là phương án được lựa chọn.

Phối cảnh thiết kế nhà tại Quảng Ninh, nhà phố 3 tầng hiện đại, phương án 2, góc nhìn 2, SĐT: 0965882388.

Phối cảnh thiết kế nhà tại Quảng Ninh, nhà phố 3 tầng hiện đại, góc nhìn garaxe, SĐT: 0965882388.

Phối cảnh thiết kế nhà tại Quảng Ninh, nhà phố 3 tầng hiện đại, góc nhìn từ bếp nhìn ra, SĐT: 0965882388.

Phối cảnh thiết kế nhà tại Quảng Ninh, nhà phố 3 tầng hiện đại, góc nhìn từ ngoài vào, SĐT: 0965882388.

Phối cảnh thiết kế nhà tại Quảng Ninh, nhà phố 3 tầng hiện đại, góc nhìn tại phòng khách, SĐT: 0965882388.
TƯ VẤN PHAN THỊNH GIỚI THIỆU THÊM MỘT SỐ MẪU NHÀ PHỐ 3 TẦNG:
1 – Thiết kế nhà tại Quảng Ninh, nhà 3 tầng, 4x12m:

Thiết kế nhà tại Quảng Ninh, mẫu nhà 4x12m, SĐT: 0965882388.
Công năng thiết kế tại tầng 1:

Mặt bằng thiết kế nhà ống 3 tầng tại Quảng Ninh, mặt bằng tầng 1, liên hệ tư vấn SĐT: 0965882388.
Tại tầng 1, phía trước nhà được thiết kế khu vực sân có kích thước đủ rộng để làm gara. Không gian phòng khách được thiết kế ngay tại khu vực cửa chính, phần mặt tiền tại tầng 1 và phần hối của phòng khách đều được thiết kế cửa và vách kính toàn bộ, để cung cấp nhiều ánh sáng cho căn nhà. Tiếp theo là đến khu vực cầu thang và phòng bếp, tại phòng bếp có cửa ra hành lang chạy dọc phía căn nhà. Sau cùng tại tầng 1 là nhà vệ sinh nhỏ có chiều rộng 2,4m2.
Công năng thiết kế tại tầng 2:

Mặt bằng thiết kế nhà ống 3 tầng tại Quảng Ninh, mặt bằng tầng 2, liên hệ tư vấn SĐT: 0965882388.
Tại tầng 2 phía ngoài mặt tiền là phòng ngủ Master, có diện tích không quá rộng, tuy nhiên căn phòng có hành lang phía ngoài khá thú vị khi sử dụng. Phía trong là phòng ngủ của 2 bé, có nhà vệ sinh khép kín phía trong, nhà vệ sinh có thiết kế đủ rộng để đặt bồn tắm nhỏ. Do căn phòng có diện tích không quá lớn lại được thiết kế gồm 02 giường ngủ nhỏ nên đơn vị thiết kế đề xuất phương án thiết kế kệ ti vi kết hợp làm bàn học khi thi công nội thất sau này.
Công năng thiết kế tại tầng 3:

Mặt bằng thiết kế nhà ống 3 tầng tại Quảng Ninh, mặt bằng tầng 3, liên hệ tư vấn SĐT: 0965882388.
Tại tầng 3 bao gồm 01 phòng thờ, 01 khu vực Gym, 01 phòng ngủ. Tại phòng ngủ phía trong được thiết kế giống phòng ngủ tại tầng 2 nhưng chỉ bao gồm 01 giường ngủ, nên trong nó khá rộng so với phòng ngủ tại tầng 2. Tại phòng thờ có cửa đi ra sân thượng phía ngoài, ở sân thượng có diện tích khá rộng để kê bàn ghế ngồi hóng mát tại đây.
2 – Thiết kế nhà tại Quảng Ninh, nhà 3 tầng, 5,5x18m:

Thiết kế nhà tại tầng 1: gồm 01 phòng khách, 01 Gara, 01 phòng bếp và phòng ăn, 01 khu vực cầu thang, 01 nhà vệ sinh.

Thiết kế nhà tại Quảng Ninh, mặt bằng thiết kế nhà ống 3 tầng tại tầng 1.
Thiết kế nhà tại tầng 2: gồm 02 phòng ngủ, 01 phòng thờ. 02 nhà vệ sinh.

Thiết kế nhà tại Quảng Ninh, mặt bằng thiết kế nhà ống 3 tầng tại tầng 2.
Thiết kế nhà tại tầng 3: gồm 02 phòng ngủ, 01 nhà vệ sinh. 01 sân phơi, 01 sân thượng.
Ngoài ra còn rất nhiều mẫu nhà phố hiện đại khác, đã được tư vấn thiết kế Phan Thịnh hoàn thiện trong nhiều năm trước, các bạn có thể xem tại đường link sau đâu: https://phanthinh.vn/nha-pho-hien-dai/
Xin trân trọng cảm ơn.
Open this in UX Builder to add and edit content
Các bạn có thể xem thêm tổng hợp các mẫu nhà phố 3 tầng hiện đại khác tại bài viết dưới đây:
Thiết kế mẫu nhà phố 3 tầng mang phong cách hiện đại tại Quảng Ninh

